Convival Library at Bo’Ness
Alterations + Extensions
Stage 2, BArch (Hons)
2019-20
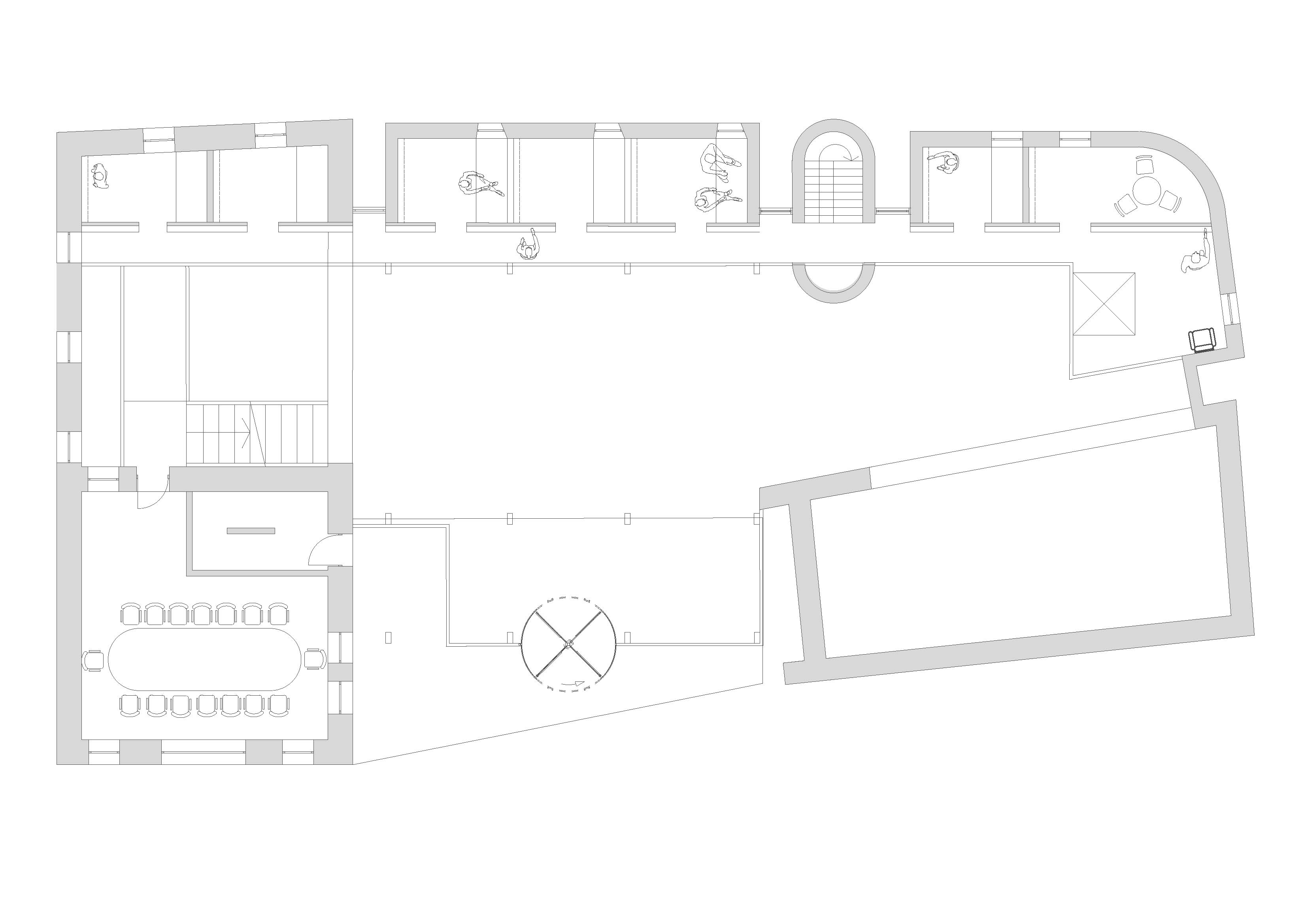
The brief of the task was to revive a prehistoric library and to create spaces suitable for modern and contermporary practices of a convival library.
Client Report
Client Presentation
Alterations + Extensions
Stage 2, BArch (Hons)
2019-20
The brief of the task was to revive a prehistoric library and to create spaces suitable for modern and contermporary practices of a convival library.
Client Report
Client Presentation








